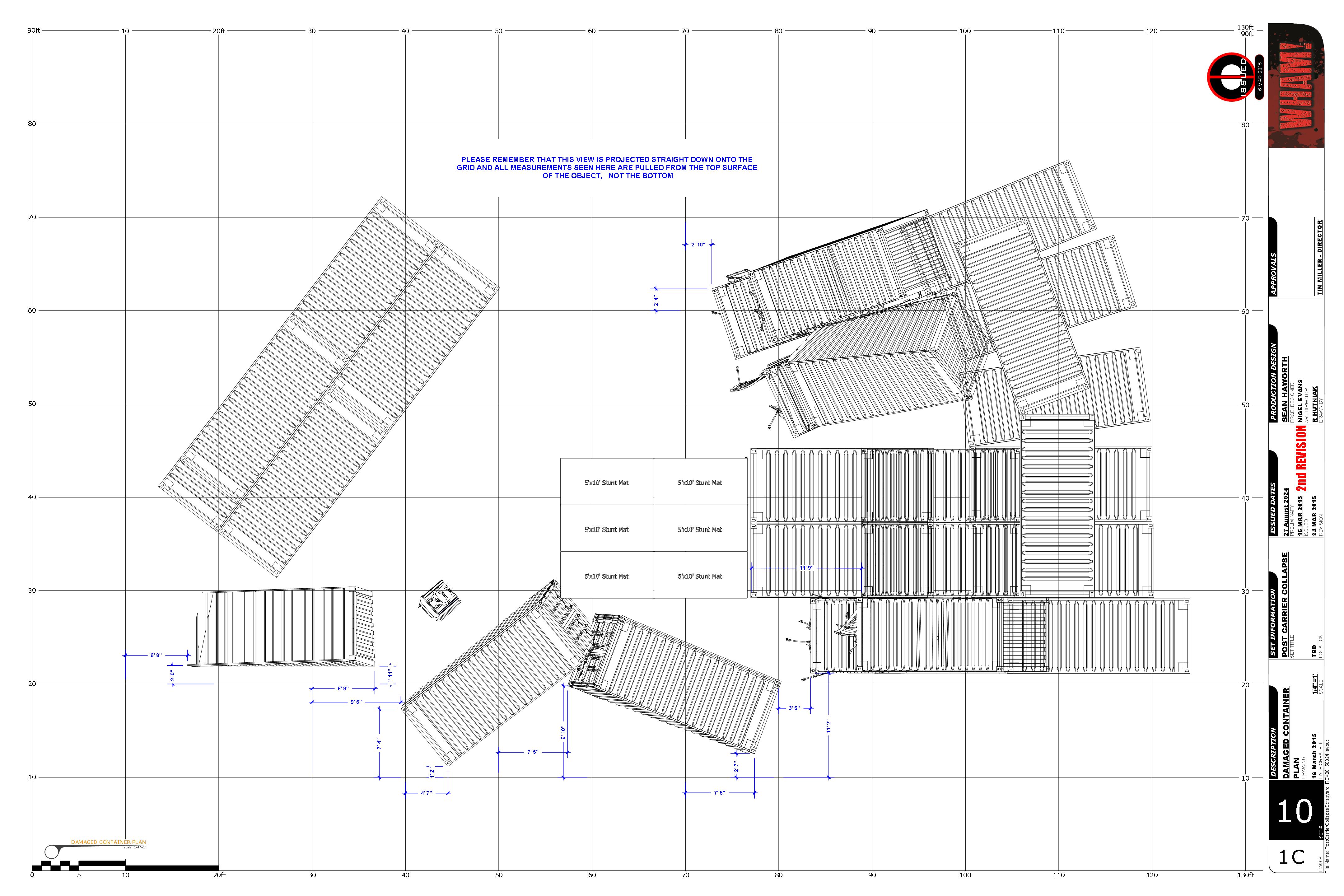
PostCarrierCollapseScrapyard ConstDocs_3_DAMAGED CONTAINER PLAN

Published by

on

Post Carrier Collapse

Post Carrier Collapse – Construction Drawings -Site Plan. Setting out the Damaged Container layer of elements